Beschrijving

Jouw eigen zaak op een toplocatie in Breskens!

Altijd al gedroomd van ondernemen op een plek waar elke dag voorbijgangers genieten van zee, zon en sfeer? 
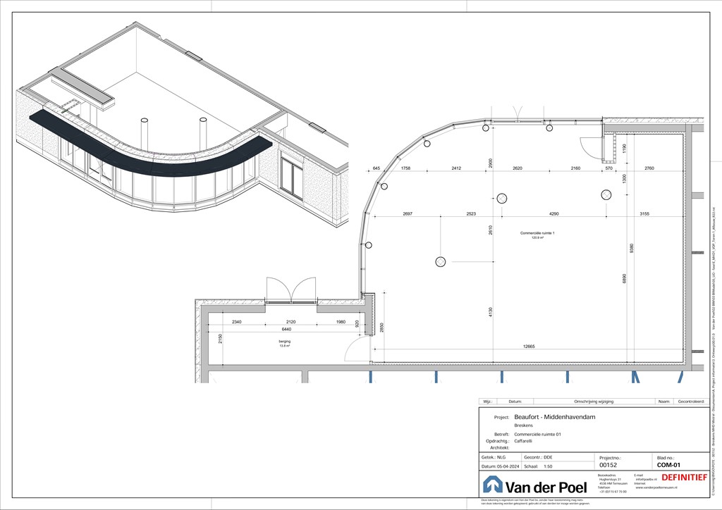
In het bruisende havengebied van Breskens, op de begane grond van het luxe appartementencomplex Mistral, is een commerciële ruimte van 134 m² beschikbaar. Met een directe ligging aan de kade én direct naast de nog te ontwikkelen toeristische trekpleister Viscentrum “de Zaete” biedt deze ruimte volop mogelijkheden. 

Breskens trekt jaarlijks duizenden bezoekers: van strandliefhebbers en fietsers tot foodies en levensgenieters. Dankzij dit levendige toeristische karakter is het havengebied van Breskens de perfecte voedingsbodem voor ondernemingen in horeca, retail, recreatie en dienstverlening. Tel daarbij op de moderne jachthaven, de goede bereikbaarheid én de nabijheid van Gent, Brugge en Knokke en je begrijpt waarom dit een strategische plek is om te ondernemen.

Huurprijs op aanvraag

Bijzonderheden

In het aan de andere kant van de haven gelegen Pharos vind je al succesvolle zaken zoals Liefs Lies, Liefs Lies Kids en Ambers Loods. 
Wij zoeken ondernemers die met hun concept een waardevolle aanvulling vormen op de beleving van dit unieke stukje Breskens. Denk bijvoorbeeld aan een traiteur, kledingwinkel of koffiebar.
De ruimte wordt casco opgeleverd maar kan in overleg met de projectontwikkelaar naar jouw wensen worden afgewerkt. De nadruk ligt op samenwerking: bedrijven versterken elkaar hier. Samen maken we van het havengebied een plek waar bezoekers telkens opnieuw verrast worden.
Heb jij een droom, idee of concreet concept dat perfect in dit plaatje past? Laat het ons weten! Wij vertellen je graag alles over de gunstige huurvoorwaarden en laten je met plezier de ruimte zien.

Is de ruimte in Mistral te klein voor jouw onderneming of niet helemaal wat je zoekt ? In het al gerealiseerde appartementencomplex Pharos aan de overkant van de haven is een commerciële ruimte van ca. 219 m² voor verhuur beschikbaar.
Dit is jouw kans om in Breskens een onderneming te starten die de beleving naar een hoger niveau tilt.

Kenmerken