Beschrijving

Interesse? Stuur dan een mail naar huren@moovsmakelaars.nl

Te huur; recent gemoderniseerd appartement met nieuwe keuken en badkamer. Het appartement beschikt over één slaapkamer.
Op de eerste verdieping van dit pand gelegen midden in het centrum van Terneuzen bieden wij dit recent gerenoveerd appartement aan.

Indeling

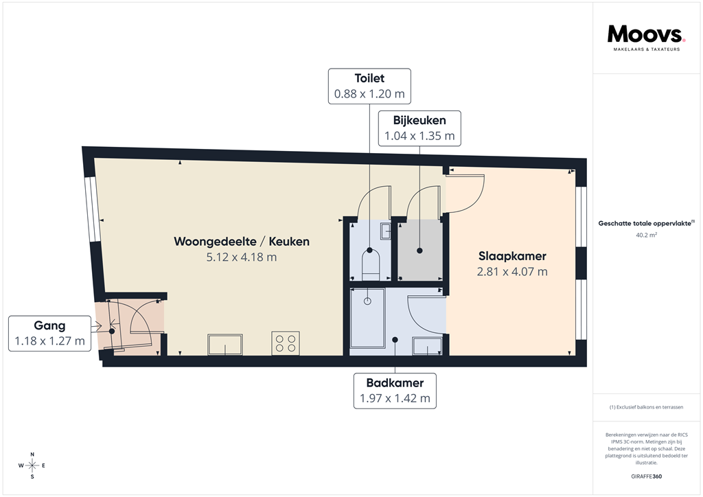
Inkomhal met toegang tot de woonkamer en keuken. De nieuwe keuken beschikt over alle benodigde inbouwapparatuur; een elektrische kookplaat, afzuigkap, oven en vaatwasser. Naast de keuken vind je een aparte toiletruimte en het cv-hok met hierin de aansluiting voor de wasmachine. Aan de voorzijde van het gebouw bevindt zich de slaapkamer met aansluitend de badkamer. De badkamer is volledig vernieuwd en beschikt over een inloopdouche en wastafel met meubel.

Bijzonderheden

Gelegen in de hoofdwinkelstraat van Terneuzen. Op loopafstand vind je de gezellige barretjes van Oud Terneuzen en sta je zo op de markt.

Het appartement is direct beschikbaar

Huurprijs: € 829,- per maand
Waarborg: € 1.658,- ( 2 maanden huur )

Interesse? Stuur dan een mail naar huren@moovsmakelaars.nl

Deze informatie omtrent de verhuur van ”Noordstraat 36b” is met zorg samengesteld. Moovs Makelaars & Taxateurs kan evenwel geen aansprakelijkheid aanvaarden voor de juistheid hiervan, noch kan aan de vermelde gegevens geen recht worden ontleend. Nadrukkelijk vermelden wij dat deze informatieverstrekking niet als aanbieding of offerte mag worden beschouwd.
Voor meer informatie of het maken van een bezichtigingsafspraak kunt u contact opnemen met:
Moovs Makelaars & Taxateurs
Axelsestraat 200
4537 AX TERNEUZEN
+31 (0)115-611489
info@moovsmakelaars.nl
www.moovsmakelaars.nl

Kenmerken