Beschrijving

In het bruisende centrum van Axel is een modern appartementsgebouw verrezen met zeven splinternieuwe appartementen, perfect afgestemd op de behoeften van starters en investeerders. Deze stijlvolle woningen, geschikt voor één- of tweepersoonshuishoudens, combineren comfort en efficiëntie met een eigentijdse uitstraling. Gelegen in de dynamische kanaalzone biedt dit project niet alleen een uitstekende woonkwaliteit, maar ook een interessante kans voor beleggers die willen inspelen op de groei van deze gewilde omgeving.

Axel is een klein stadje in het Oosten van Zeeuws-Vlaanderen en is gunstig gelegen ten opzichte van plaatsen als Hulst, Terneuzen en Sas van Gent. Ook de Belgische regio Antwerpen en Het Zeeuwse Goes zijn binnen afzienbare tijd te bereiken.

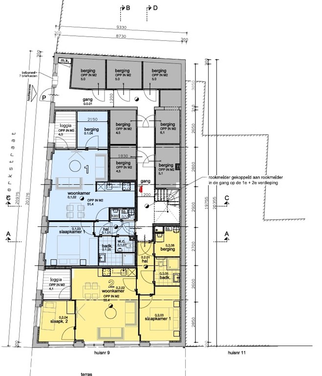
Dit appartement met 2 slaapkamers is gelegen op de begane grond van het gebouw en kent een oppervlakte van 53 vierkante meter. Het object is daarnaast voorzien van een loggia van circa 4 vierkante meter.
Het appartement wordt opgeleverd met inbegrip van een keuken, badkamer en vloeren.

Nieuwsgierig geworden en wenst u meer informatie? Neem dan contact met ons op

Kenmerken