Beschrijving

Ben jij op zoek naar een fijne woning met veel mogelijkheden gelegen nabij de voorzieningen van Axel? Dan is deze goed onderhouden tussenwoning met zonnige tuin op het zuiden en aangebouwde berging echt iets voor jou!

Deze woning is netjes onderhouden en biedt een goede basis om naar eigen smaak te moderniseren. De leuke ligging en praktische indeling maken dit een perfecte kans voor starters of jonge gezinnen.

Wonen in Axel is ideaal: Alle voorzieningen zijn aanwezig. Denk aan een winkelcentrum, zorginstellingen, sportaccommodaties en diverse horecagelegenheden. Daarnaast heeft Axel een zeer centrale ligging, de uitvalswegen naar steden zoals Middelburg, Gent, Antwerpen en Brugge zijn nabij.

Indeling

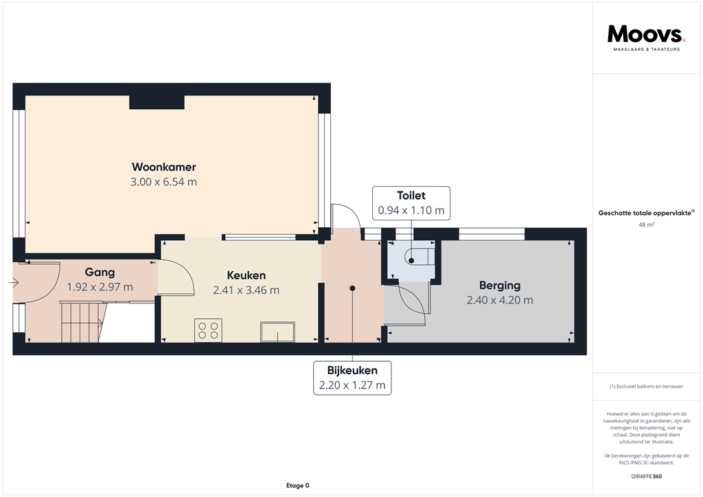
Binnenkomst in de inkomhal met meterkast en opgaande trap naar de verdieping. Vanuit de hal bereik je de gezellige woonkamer, voorzien van keurige laminaatvloer. Aansluitend is de keuken. De keuken is uitgerust met een kookplaat, afzuigkap, oven en koelkast. Via de keuken is er toegang naar de bijkeuken, toiletruimte en berging. De berging is ideaal als opslagruimte, fietsenstalling of hobbyruimte. Tevens is hier de aansluiting voor een wasmachine aanwezig.

Eerste verdieping

Op de eerste verdieping bevinden zich drie slaapkamers en een eenvoudige badkamer. De badkamer beschikt over een douche en wastafel.

Tweede verdieping

Bergzolder, bereikbaar via een vlizotrap – perfect voor extra bergruimte.

Tuin

Zin in lange zomerdagen in je eigen tuin? Deze zonnige achtertuin op het zuiden is de perfecte plek om te ontspannen. Of je nu houdt van een goed boek in de zon, barbecueën met vrienden of tuinieren: hier kan het allemaal. De tuin is netjes onderhouden, biedt privacy en is ook via de achterzijde bereikbaar.

Bijzonderheden

De woning beschikt over houten kozijnen met dubbele beglazing
Verwarming en warm water middels c.v.-ketel type Nefit (bj.2009)
Energielabel D
Vraagprijs: € 190.000,- k.k.

Kenmerken