Beschrijving

Leuke (starters)woning!
Gelegen in een woonwijk aan de rand van het gezellige dorp Hoek staat deze tussenwoning met 3 slaapkamers, aangebouwde berging en een leuk aangelegde tuin op het Zuiden. De woning is grotendeels voorzien van (vernieuwde)kunststof kozijnen.
Wonen in Hoek is ideaal: De uitvalswegen naar België, de Westerscheldetunnel en de prachtige Zeeuwse kust zijn nabij. In Hoek zijn alle noodzakelijke voorzieningen zoals een bakker, slager, basisonderwijs en huisarts aanwezig. Daarbij zijn er diverse sportaccommodaties en beschikt Hoek over een actief dorpsleven. Ieder jaar worden er Hoekse Feesten, een BBQ en diverse kinderactiviteiten georganiseerd.

Benieuwd naar deze leuke woning? Maak snel een afspraak voor bezichtiging.

Bouwjaar 1959
Woonoppervlakte 70m2 
Perceeloppervlak 155m2
Energielabel E
Tuin op het Zuiden

Indeling

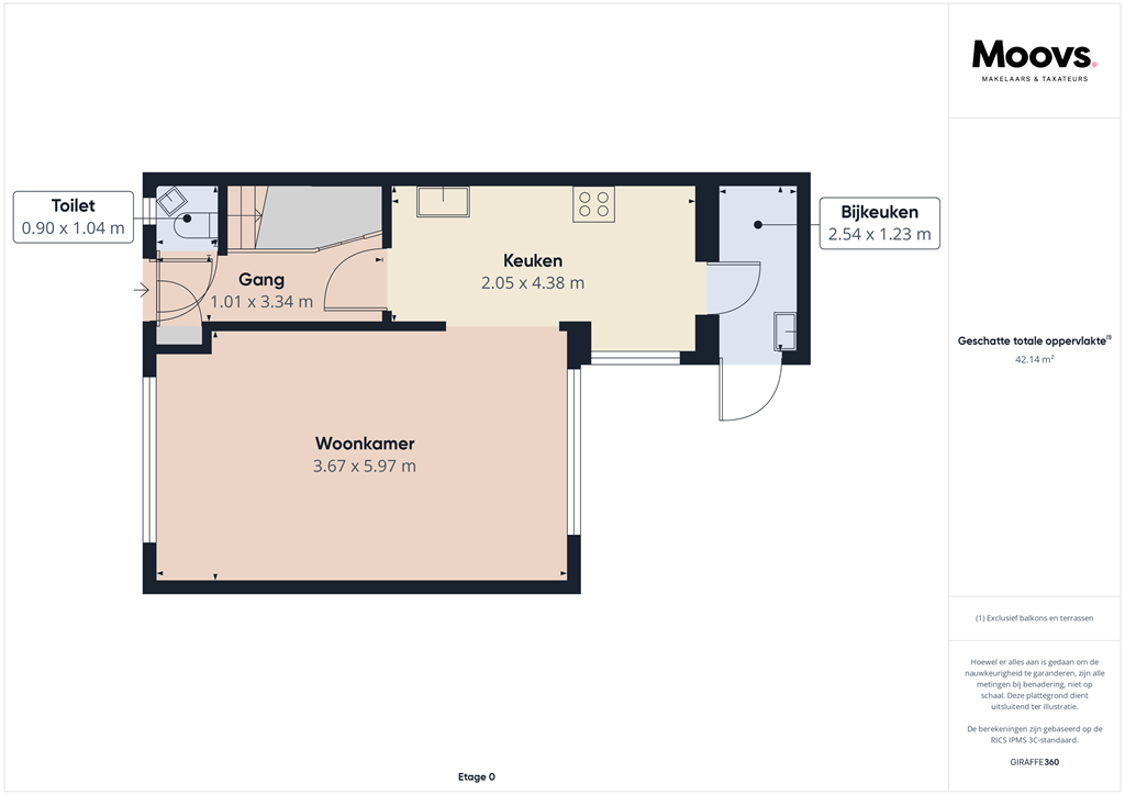
Inkomhal met opgaande trap, trapkast, meterkast, toiletruimte en toegang naar de woonkamer en keuken. De gezellige woonkamer beschikt over een half open keuken. De keuken is voorzien van een gasfornuis, afzuigkap en oven. Vanuit de keuken is de bijkeuken bereikbaar. Hier is de aansluiting van de wasmachine en ruimte voor een extra vriezer gecreëerd. De bijkeuken geeft toegang tot de tuin.

Eerste verdieping

Op de eerste verdieping bevinden zich 3 slaapkamers. Eén van de slaapkamers wordt momenteel gebruikt als dressroom.  De badkamer is volledig betegeld en beschikt over een douche en een wastafel.

Tweede verdieping

Ruime bergzolder bereikbaar middels Vlizotrap.

Tuin

Leuk aangelegde tuin met terras gesitueerd op het Zuiden. Zo kan er volop van het zonnetje worden genoten. De tuin beschikt ook over een berging en tuinhuisje. Genoeg mogelijkheden voor het opbergen van bijvoorbeeld fietsen of tuinmeubels.

Bijzonderheden

Het energielabel is niet recent.
De woning is grotendeels voorzien van kunststof kozijnen met dubbele beglazing en deels voorzien van rolluiken.
Verwarming en warm water middels combi c.v.-ketel
Meterkast met voldoende groepen


Deze informatie omtrent de verkoop van de ”Margrietstraat 8” is met zorg samengesteld. Moovs Makelaars & Taxateurs kan evenwel geen aansprakelijkheid aanvaarden voor de juistheid hiervan, noch kan aan de vermelde gegevens geen recht worden ontleend. Nadrukkelijk vermelden wij dat deze informatieverstrekking niet als aanbieding of offerte mag worden beschouwd.

Voor meer informatie of het maken van een bezichtigingsafspraak kunt u contact opnemen met:
Moovs Makelaars & Taxateurs
Axelsestraat 200
4537 AX TERNEUZEN
+31 (0)115-611489
info@moovsmakelaars.nl
www.moovsmakelaars.nl

Kenmerken