Beschrijving
Uniek woon-/winkelpand op zichtlocatie in het hart van Terneuzen – ideaal voor transformatie of herontwikkeling
Op een zeer centrale en goed bereikbare locatie in Terneuzen, op de kruising van de Axelsestraat en Dokweg – twee belangrijke verkeersaders door de stad – bevindt zich dit ruime woon-/winkelpand met een totale gebruiksoppervlakte van maar liefst circa 440 m².
Het pand ligt op een uitstekende zichtlocatie, ideaal voor ondernemers die op zoek zijn naar een representatieve plek voor hun bedrijf. Tegelijkertijd biedt het pand veel potentie voor projectontwikkelaars en investeerders die kansen zien in herontwikkeling naar meerdere woonruimtes of appartementen.
Oorspronkelijk gebouwd in 1920 en door de jaren heen uitgebouwd en gerenoveerd. Het pand is volledig voorzien van kunststof kozijnen met isolerende beglazing, wat bijdraagt aan een goede energieprestatie en beperkt onderhoud.
Indeling
Indeling
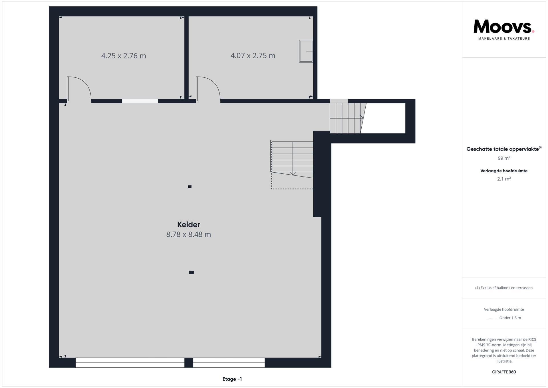
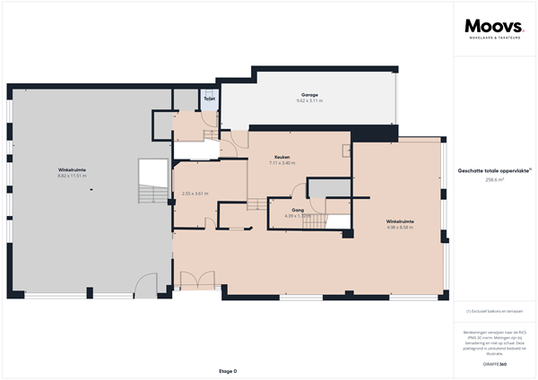
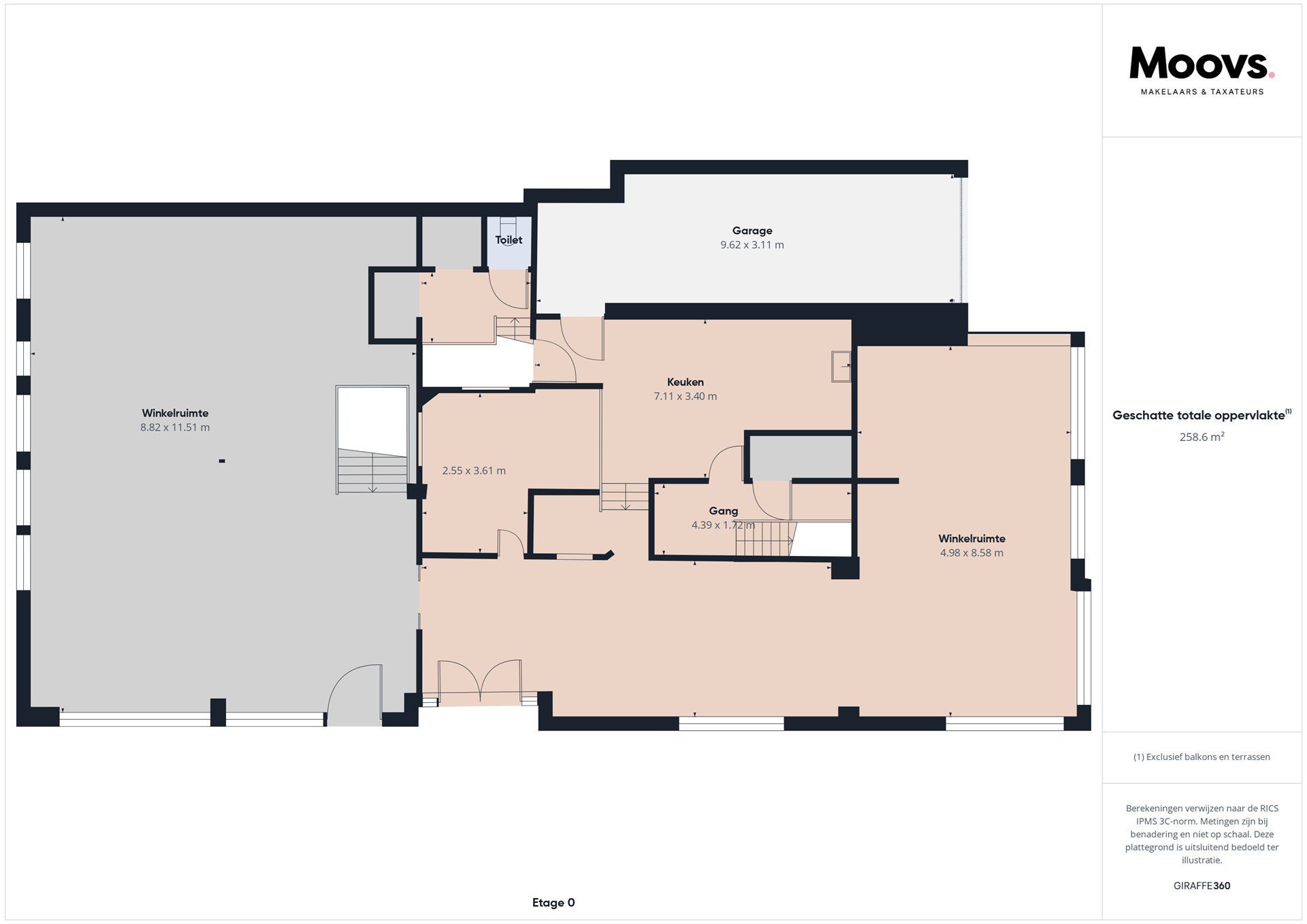
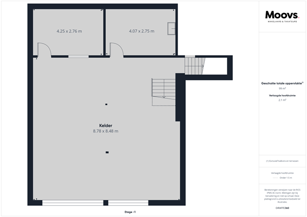
• Begane grond: ruime winkelruimte, verdeeld over twee secties, met aangrenzende kantine en keuken. Vanuit hier is tevens toegang tot het zeer ruime souterrain – ideaal als opslag- of werkruimte.
• Achterzijde: een royale garage met elektrische poort biedt directe toegang tot de Axelsestraat.
• Verdieping: een ruime bovenwoning met lichte woonkamer, open keuken, dakterras, twee slaapkamers, badkamer met ligbad, douche en wastafel, en een separaat toilet.
Bijzonderheden
Bestemming en mogelijkheden
De huidige bestemming is detailhandel, maar de omvang, ligging en structuur van het gebouw maken het uitermate geschikt voor transformatie naar woonappartementen of combinatie van wonen en werken.
Met de juiste visie biedt dit pand een bijzonder kansrijke herontwikkelingsmogelijkheid midden in Terneuzen — een investering met toekomstwaarde voor wie potentie ziet in stedelijke vernieuwing.
Disclaimer:
Deze informatie omtrent de verkoop van de ”Axelsestraat 151 in Terneuzen” is met zorg samengesteld. Moovs Makelaars & Taxateurs kan evenwel geen aansprakelijkheid aanvaarden voor de juistheid hiervan, noch kan aan de vermelde gegevens geen recht worden ontleend. Nadrukkelijk vermelden wij dat deze informatieverstrekking niet als aanbieding of offerte mag worden beschouwd.
Voor meer informatie of het maken van een bezichtigingsafspraak kunt u contact opnemen met:
Moovs Makelaars & Taxateurs
Axelsestraat 200
4537 AX TERNEUZEN
+31 (0)115-611489
info@moovsmakelaars.nl
www.moovsmakelaars.nl