Beschrijving
Royale energiezuinige woning met overkapping, garage en tuin gelegen in hartje Terneuzen!
Deze prachtige woning is modern afgewerkt en volledig instapklaar. De woning beschikt over vier volwaardige slaapkamers en biedt daarnaast de mogelijkheid om een extra kamer te realiseren. Bovendien is de woning volledig gasloos en daarmee klaar voor de toekomst.
De ligging is heerlijk rustig, aan een straat met voornamelijk bestemmingsverkeer, terwijl het levendige stadscentrum zich op loopafstand bevindt. Liever een ontspannende wandeling? De Westerscheldedijk, waar je volop kunt genieten van het schitterende uitzicht, is op loopafstand bereikbaar.
Benieuwd naar deze mooie woning? Maak snel een afspraak voor bezichtiging!
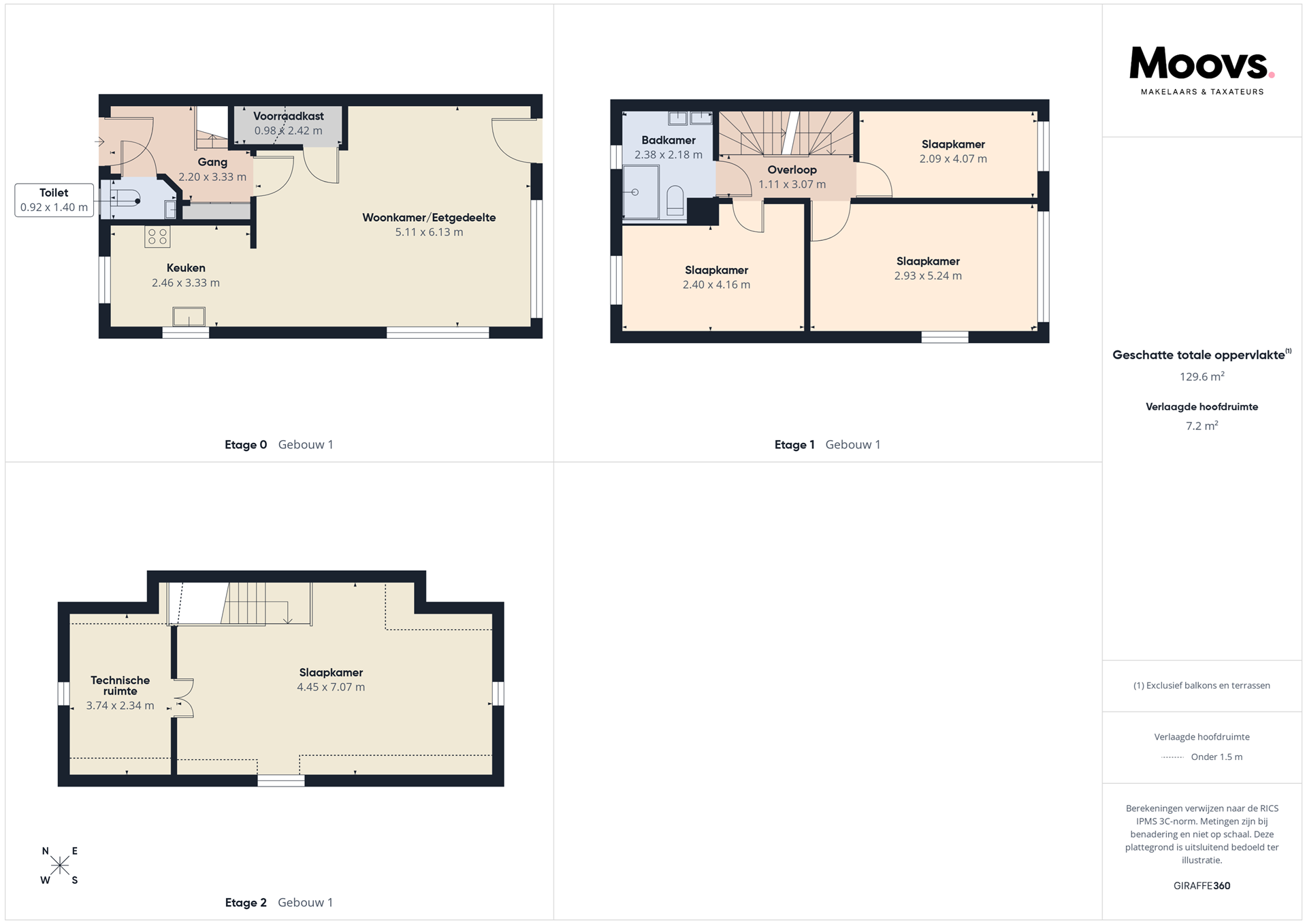
Indeling
Ruime inkomhal met toegang tot het toilet, de meterkast en de woonkamer. De meterkast is netjes weggewerkt door middel van een mooie lattenwand. De ruime woonkamer is voorzien van grote raampartijen aan zowel de zij- als achterkant. Dit maakt de ruimte heerlijk licht. Er is voldoende ruimte voor een zithoek en een eethoek. De moderne keuken is uitgerust met alle benodigde inbouwapparatuur zoals een inductiekookplaat, afzuigkap, oven, koelkast, Quooker kraan en vaatwasser. De gehele beneden verdieping is voorzien van vloerverwarming en een mooie visgraatvloer.
Eerste verdieping
Overloop met toegang tot 3 ruime slaapkamers en de badkamer. De schitterende badkamer is van alle benodigdheden voorzien: Een royale inloopdouche, toilet en dubbele wastafels met bijpassend meubel. Daarnaast is er in de badkamer vloerverwarming aanwezig.
Tweede verdieping
De tweede verdieping is bereikbaar middels een vast trap. Door middel van twee mooie houten klapdeuren is de ruimte gescheiden in twee delen. Het voorste gedeelte kan gebruikt worden als slaapkamer of hobbyruimte. Door de dakkapel is de zolder extra licht en ruim en geeft zelfs de mogelijkheid om deze nog op te delen in twee slaapkamers. Achter de houten deuren bevindt zich de technische ruimte met de warmtepomp en de aansluiting voor de wasmachine.
Tuin
De tuin is gelegen op het Zuidoosten. De tuin is onderhoudsvriendelijk aangelegd en beschikt over verschillende niveaus die de tuin een speelse indeling geven. Je kunt hier op de hete zomerdagen heerlijk genieten van een plekje in de schaduw onder de overkapping of een plekje in de zon opzoeken. Vanuit de tuin heb je directe toegang tot de garage en de naastgelegen straat. De garage beschikt over een elektrische deur.
Bijzonderheden
• Bouwjaar 2006
• Energielabel A
• De woning is volledig gasloos en maakt uitsluitend gebruik van elektrische voorzieningen.
• De woning beschikt over 12 zonnepanelen en een warmtepomp
• Op de begane grond en in de badkamer is vloerverwarming aanwezig.