Beschrijving
Zaamslag – Luxe duplexappartement in een karaktervol pand
Wonen op een plek waar historie en modern comfort elkaar ontmoeten? Aan het gezellige Plein in het hart van Zaamslag vind je dit royale hoekappartement, onderdeel van een stijlvol complex met 2 instapklare appartementen op de begane grond en drie duplex appartementen op de verdieping. Het gebouw ademt historie – ooit huisde hier Herberg het Wapen van Zeeland. Vandaag straalt het pand weer in volle glorie, maar dan met een eigentijdse afwerking en alle gemakken van nu.
Een appartement met stijl
Via de trap aan de zijkant van het pand bereik je de galerij naar de appartementen. De voordeur opent naar een lichte hal met apart toilet en praktische bergkast. De woonkamer is ruim en uitnodigend, met grote ramen die zorgen voor een heerlijke lichtinval. De open Nolte-keuken is luxe uitgevoerd en voorzien van moderne inbouwapparatuur. De badkamer op deze verdieping is strak en modern met inloopdouche en stijlvol wastafelmeubel.
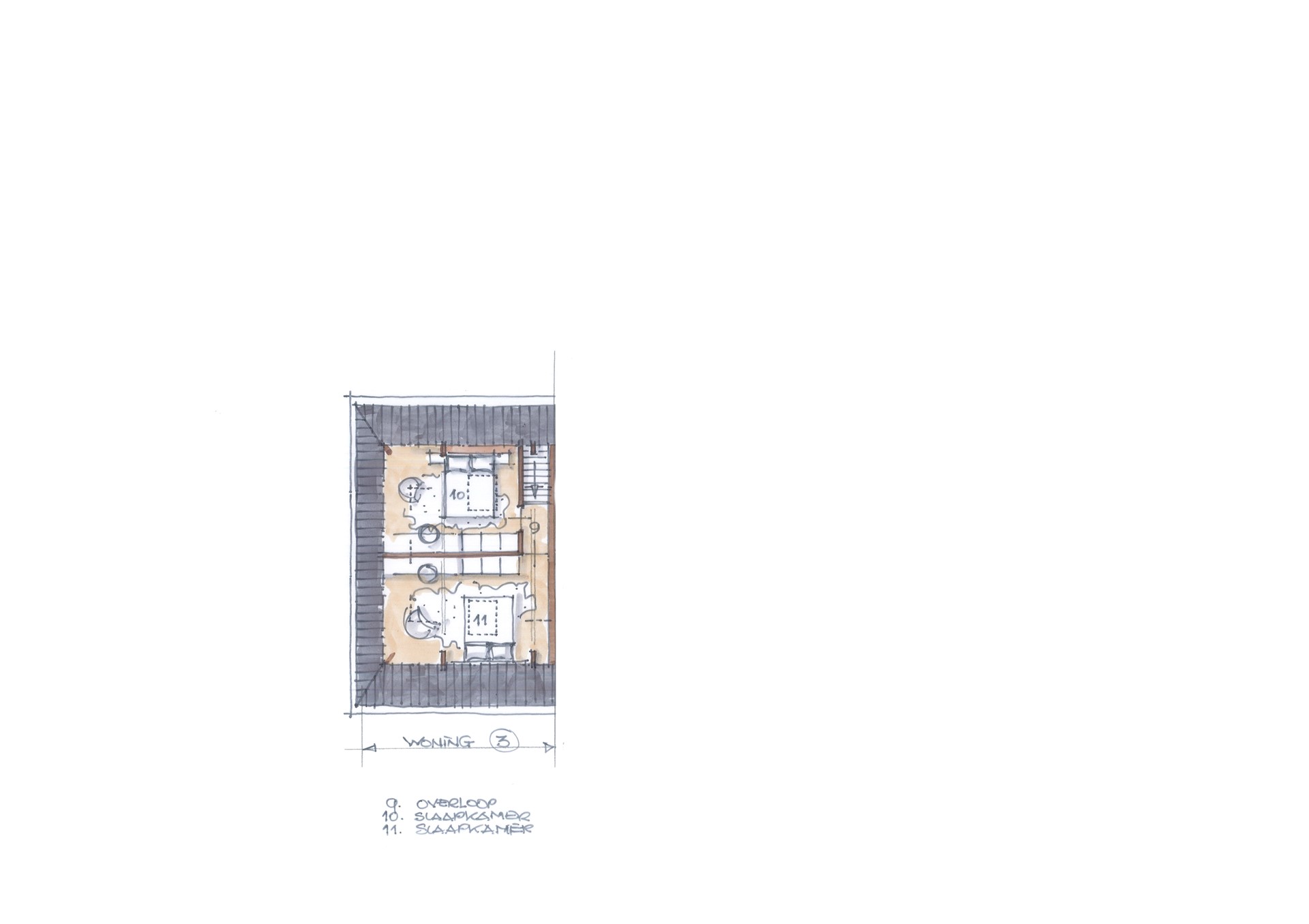
Grenzend aan de galerij is er een royaal privé-dakterras, jouw eigen zonnige buitenruimte. Op de verdieping, onder de charmante dakspanten, liggen twee sfeervolle slaapkamers die uitnodigen tot heerlijk ontspannen.
Comfort en extra’s
• Appartement 3 heeft een woonoppervlak van 80 m²
• Luxe keuken (Nolte) met inductiekookplaat, afzuigkap, vaatwasser en koelkast
• Moderne badkamer met inloopdouche en wastafelmeubel
• Eerste woonlaag met pvc-vloer en vloerverwarming. De tweede woonlaag is voorzien van een laminaatvloer en radiatoren. Het appartement heeft een eigen Remeha-combiketel.
• Op het gebouw zijn voor dit appartement 5 zonnepanelen aanwezig.
• Ruim privé-dakterras aan de achterzijde
• Berging op de begane grond en gezamenlijke fietsenstalling
• Mogelijkheid tot aankoop van een eigen parkeerplaats in de afgesloten garage (met elektrische bedienbare sectionaalpoort). Er zijn in totaal 3 parkeerplaatsen beschikbaar.
• Houten kozijnen met HR beglazing
• De VvE voor het complex is in oprichting. De servicekosten voor dit appartement worden geschat op € 172,- per maand.
• Het appartementencomplex betreft transformatie en wordt fiscaal niet als nieuwbouw aangemerkt. Op de transactie is overdrachtsbelasting verschuldigd in plaats van btw.
• De projectnotaris is Sauer & Oonk in Vlissingen
Zaamslag: gezellig dorp, centrale ligging
Zaamslag is een levendig dorp in Zeeuws-Vlaanderen, bekend om zijn vriendelijke sfeer en het knusse dorpsplein met winkels, horeca en het karakteristieke voormalige gemeentehuis. Op de fiets ben je zo in het weidse polderlandschap of bij de Westerschelde. Hulst en Terneuzen liggen op korte rijafstand, en via de Westerscheldetunnel rijd je snel richting Middelburg.
Maak vandaag nog een afspraak voor een bezichtiging!
Vraagprijs € 295.000,- k.k.